We design with construction in mind.

Our process begins by bringing our design and construction teams to the table from day one. That early collaboration gives our Dallas designers real insight into cost, constructability and layout options — leading to smarter decisions, stronger designs and more reliable budgets. The result is a smoother schedule, fewer surprises and a project that stays aligned with your goals from start to finish. Most importantly, it ensures a final outcome you can feel confident in.

Partnering with

Arizona Tile

SUMMERHILL POOLS

ELITE FOUNDATION REPAIR

SHERWIN-WILLIAMS

The Jarrell Company

It starts with a conversation.

At our first meeting, our design team takes the time to listen — learning about your ideas, priorities and how you live in your home every day. We combine those conversations with detailed measurements to fully understand the project and begin shaping the design.

From there, we explore as many design options as needed, refining layouts and details until the plan feels right to you. Once a direction is selected, we develop an accurate, transparent cost so expectations are clear from the start.

After the plan and budget are approved, our team completes the necessary permits and construction drawings. With plans, elevations and optional 3D renderings, or even a 1to1 scaled real life “walk through”, you’ll have a clear, confident picture of how your remodel or new build will come together before construction begins.

Design Phase

  • Multiple floor plan options will be presented to maximize the function and beauty of your home.

  • Elevations show how your house could look from each side. During this phase we will present you multiple options to choose from.

  • Before final approval is given we can create detailed 3D renderings of the exterior and interior to help you visualize the final outcome.

  • All drawings required by the city of Dallas, except required engineering and surveys, will be completed to obtain a permit for construction. These documents may include special site plans, existing floor plans, new floor plans, electrical plans, roof plans, foundation plans, wall sections and details.

It’s all in the details

Multiple floor plan options will be presented to maximize the function and beauty of your home.

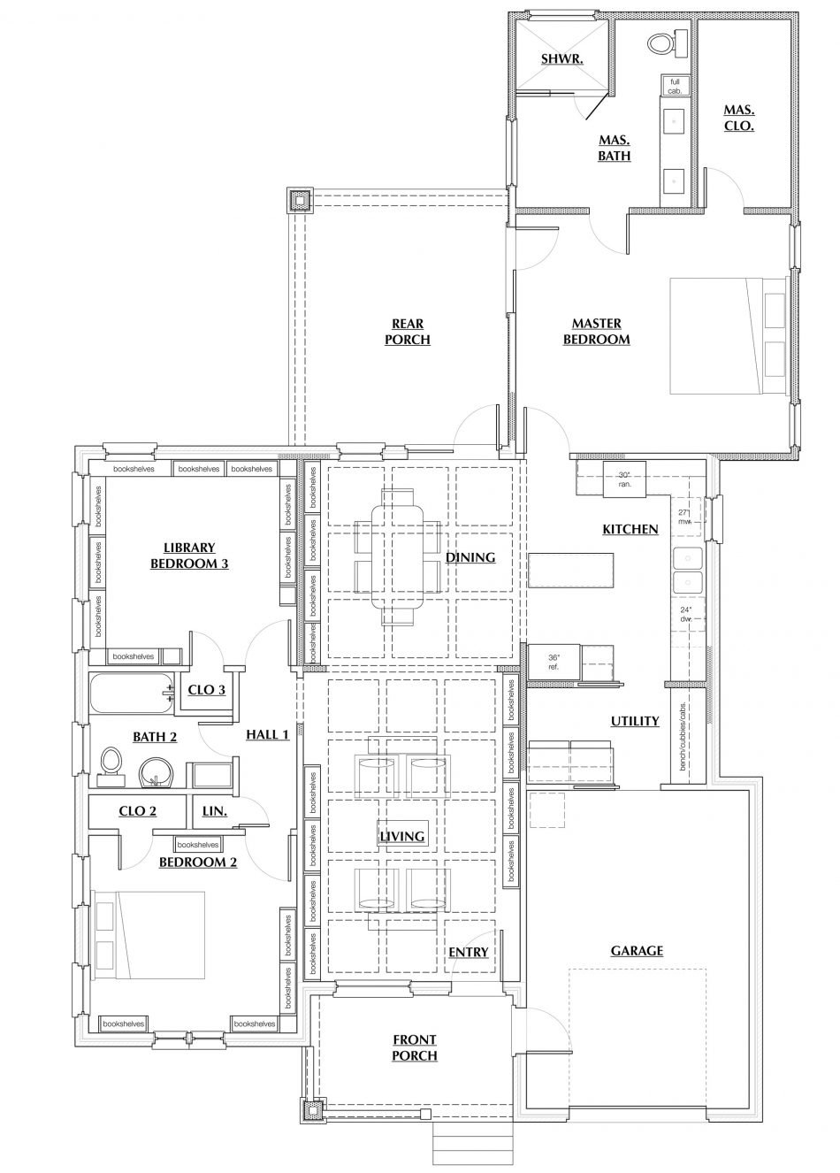
A detailed house floor plan with labeled rooms including bedrooms, bathrooms, living room, dining room, kitchen, laundry, library, storage, closets, utility room, garage, front porch, and rear porch.

Floorplan A

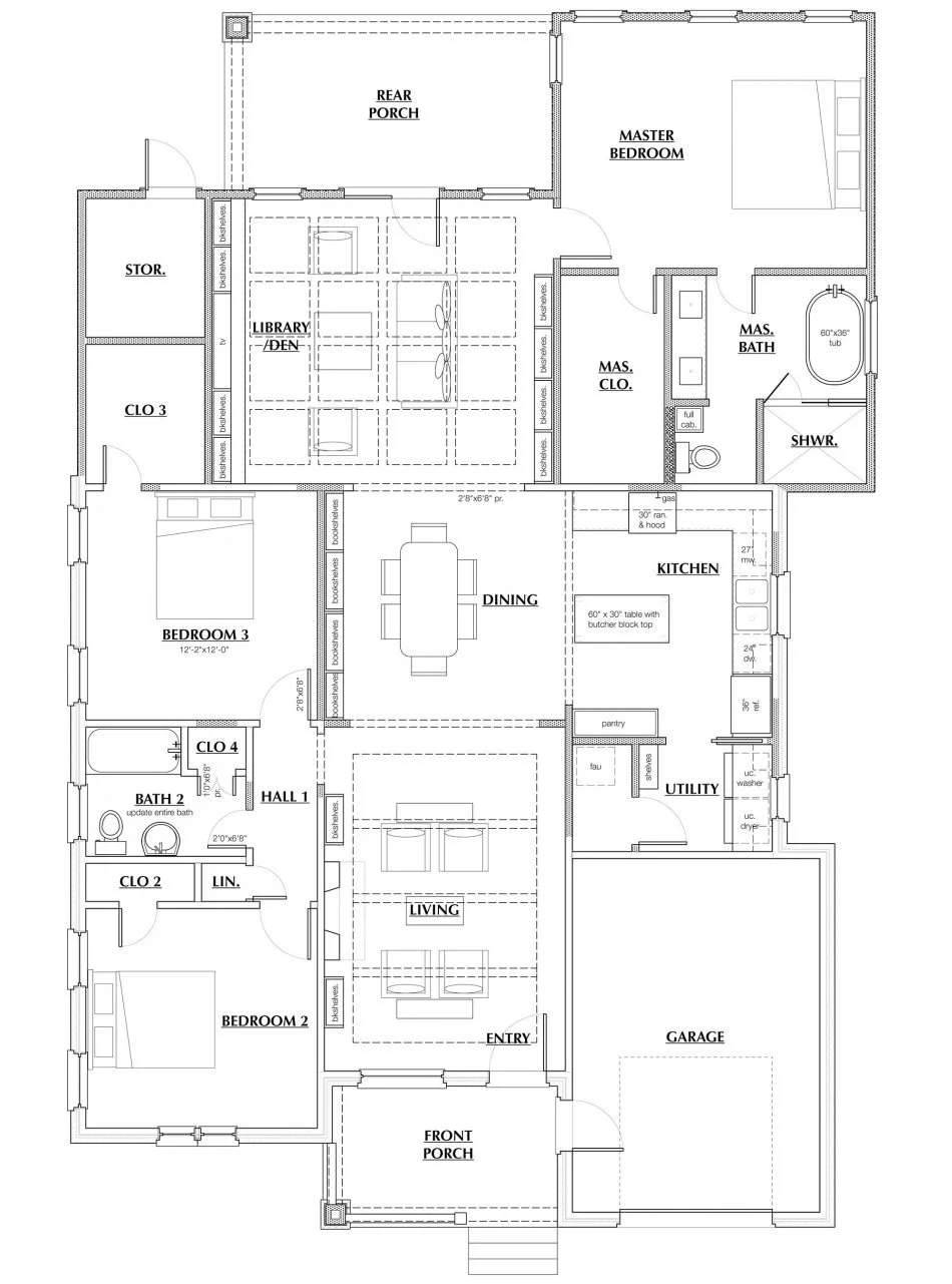
Floor plan of a house with labeled rooms including a garage, living room, entry, bedrooms, bathrooms, kitchen, dining room, den, library, hallways, laundry room, master bedroom with master bath and closet, and a rear porch.

Floorplan B

Floor plan of a house showing rooms including a porch, entry, living room, dining area, kitchen, utility room, master bedroom with bathroom and closet, two additional bedrooms, bathrooms, a library, a garage, and a rear porch.

Floorplan C

Create Curb Appeal

Elevations help you visualize how your home will look from every side. We’ll walk you through several options, making it easy to compare styles and select the one that feels like home.

Line drawing of a two-story house with a front porch, multiple windows, a garage with windows, and a chimney on the right side.
Line drawing of a two-story house with a front porch, multiple windows, a garage, and a chimney.

Floorplan B

Line drawing of a two-story house with a front door, multiple windows, a garage, and a chimney.

Floorplan C

Floorplan A

A modern two-story house with a white exterior, arched and rectangular windows, and a front porch with a curved archway. The house has a landscaped front yard with a concrete walkway, green lawn, and small bushes. There are tall trees and neighboring houses in the background under a clear blue sky.
Architectural drawing of a two-story house with brick exterior, tall arched window, and multiple gabled roofs, with trees and cloudy sky background.
Line drawing of a modern kitchen with an island, refrigerator, oven, stovetop, cabinets, pendant lights, and a window.

Visualize the future.

Prior to final approval, we offer detailed 3D renderings of the exterior and interior to help you clearly visualize the final outcome and move forward with confidence.

Let Bella Vista handle the paperwork.

All drawings required by the city of Dallas, except required engineering and surveys, will be completed to obtain a permit for construction. These documents may include special site plans, existing floor plans, new floor plans, electrical plans, roof plans, foundation plans, wall sections and details.

Some local neighborhoods are in conservation districts and special research is required to comply with local codes and ordinances. But living in a conservation district doesn’t have to limit the success of your build. We have the experience necessary in Dallas’ strict conservation districts.

Selections & Finishes

As the plan nears completion, our interior designer steps in to guide you through selecting the finishes that bring the project to life. You’ll meet with our team to review cabinetry options, tile drawings, countertop selections and other key details.

After shopping and collaborating with our design team on each choice, we compile a detailed selection sheet outlining every finish — from paint colors and tile to cabinetry and countertops. Once approved, this document becomes a roadmap for construction, helping ensure a smooth, organized build with fewer surprises along the way.

Blueprint of a kitchen backsplash with labeled features, including tile layout, wall tile, base tile, and backsplash border.

Once the design of your home is completed, we roll up our sleeves to turn your vision into reality.

This is where materials, skill and dedication come together to bring your vision to life. We stay closely involved throughout the process, carefully overseeing each step to ensure the final result meets your expectations and earns your complete satisfaction.

Two people, a man and a woman, are standing at a table looking at a large map or plan. The man is pointing at the map with his finger, and both are engaged in discussion. They are in a bright room with windows in the background.
  • "I had an amazing experience working with Bella Vista on our 2nd floor addition. Rob and Whitney were incredible throughout - professional, creative, and attentive to detail. They truly brought my vision to life and made the daunting task of planning such a big project feel seamless. "

    Keith Harvey

  • "We had an absolutely wonderful experience working with Rob and Whitney on our home renovation designs. From start to finish, they made the process feel fun, easy, and genuinely exciting."

    Lizzie Stephens

  • "Amazing Design Group with Bella Vista. Really the best in expertise, design sense, space management and communication. They go above and beyond to work with you and no obstacle is an issue!"

    Nisha Woods

  • "We've worked with Rob and Whitney twice and we have been very happy with their creativity and ability to create beautiful and functional designs. They work quickly and are very responsive to design changes. It was very easy to work with them!"

    A.J. Ortega